共同研究(技術の実践現場における学習を授業に取り入れる手法の研究)
共同研究(技術の実践現場における学習を授業に取り入れる手法の研究)
| 連携企業 | 参加生徒 |
| 金澤工業株式会社、長野県職業能力開発協会、オリオン機械株式会社 | 環境システム科 |
研究の目的
建築設備の基礎的学習を積む一方で実践的な学習をする機会が乏しく、施工現場と大きく意識のずれを感じている。そこで、企業と連携を深め日頃、疑問に思っていること を設計製図(CAD製図)や実技習得(実践的技術学習)も含め学習し実践的カリキュラムを共同研究したい。
また、授業において空調機器の構造・理論を学習の補強として、実際の空調機器の生産現場を見学し(現場見学)、次年度の企業実習につなげるとともに、併せて生産設備の見学により、最新の機械加工技術や工作機械についての知見を深めたい。
研究内容
1:CAD製図
課題研究(CAD製図)時に企業の方より、指導をしていただいた。
・CADにて建築図面をトレースすることから始める。(環境システム科では、JW_CADと頭脳RAPIDのCADソフトを使用している。JW_CADはフリーソフトで容易に入手することが でき、比較的簡単なソフトであり頭脳RAPIDは手書き感覚に近い直感的な操作性で高度な機能も搭載されスタンダードなCADである。)衛生器具などの部品点数も多い頭脳RAPIDを使用し3つの課題に取り組む。(CADは、トレースの課題は点数をこなすことにより操作技術が習得されるということで、1,2学期をCADの操作技術に時間を当てた。)
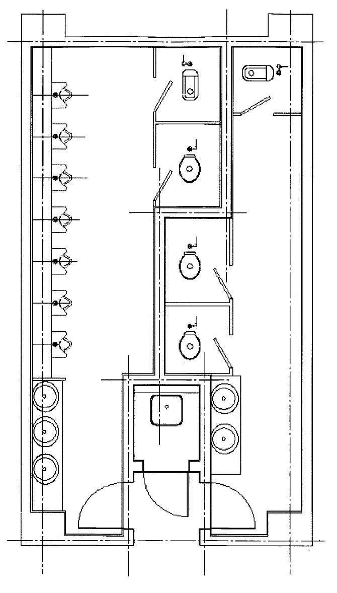
![]() |
![]() |
| 頭脳RAPIDでの建築図面 | 環境棟のトイレ図面 |
建築図面もCADにて描けるようになり授業で行っている衛生防災設備の給排水配管を建築図面に描く事を学ぶ。(衛生図面)
本校環境システム科の衛生設備配管を例に取り上げ、給排水配管の設置手順をご指導いただいた。
給排水の配管、管径の求め方(ポンプ直送方式の給水管の管径決定法より)を学習し管径を求めた。
2:実践的技術学習
実践的技術学習では、実習内容に保守管理(冷媒配管)実習・管加工実習を取り入れ、知識・技能について学習している。また、冷媒配管施工技術に関係し、国家資格の「冷 凍空気調和機器施工」の資格取得を全学年に呼びかけ実技習得の向上を目指す。

現場の技術者の指導のもと、冷凍空気調和機器施工」の資格取得に沿った実習内容にて学習を積んでいく。図面のひき方、材料の寸法の取り方、加工の仕方、組み立て方 、そして最後の耐圧試験と現場の作業に沿った試験に対応出来るように指導を頂いた。
3:現場見学
授業における空調機器の構造・理論を学習の補強として、空調機器メーカーであるオリオン機械を見学し、次年度の企業実習につなげるとともに、併せて生産設備の見学に より、最新の機械加工技術や工作機械についての知見を深める。
実習結果
1:課題研究(CAD製図)
実際に施工されている配管を利用しご指導頂いたので、分りやすく生徒も理解が早かった。
| A | B | C | D | E | |
| 集中して授業に取り組んだ | 1 | 0 | 1 | 0 | 0 |
| 興味が持てる授業であった | 0 | 1 | 1 | 0 | 0 |
| 学習内容を理解できている | 0 | 1 | 1 | 0 | 0 |
| 実践的な内容の授業 | 2 | 0 | 0 | 0 | 0 |
| 技術者の指導は有効だ | 2 | 0 | 0 | 0 | 0 |
A:当てはまる B:だいたい当てはまる C:どちらとも言えないD:あまり当てはまらない E:当てはまらない
また、生徒の感想から
「企業の方は、専門的な知識が豊富で細かいアドバイスをしてもらった、現場では効率よく作業ができるように、「虎の巻」なるものが存在した。」、「資料などを持参して頂き、具体的に管径の求め方を教えてもらえて良い経験になった。」などご指導いただいてよかった感想であった。
その反面、基礎知識が足りず、図の見方に手こずったという反省点もあった。
2:実践的技術指導
冷媒配管施工技術に関係し、国家資格の「冷凍空気調和機器施工」の資格取得を全学年に呼びかけたところ7名が希望し受験。実技指導には、「長野県職業能力開発協会」より探して頂いた技術者に2日間の指導を受け、実技試験が終了している。2月上旬には、学科試験が予定されている。以下に技術指導生徒アンケート結果を記します。
ア)実技指導
・平成20年11月29日(土) 9:00~15:30
・平成20年12月6日(土) 9:00~15:30
イ)実技試験
・平成20年12月21日(日) 松本
ウ)生徒アンケート(講義・実習開始時点)
| 質問事項 | A | B | C | D | E |
|---|---|---|---|---|---|
| 予定されている講義・実習を集中して受講出来ると思いますか | 5 | 1 | 0 | 0 | 0 |
| 習得する予定の技術・技能について興味がありますか | 5 | 1 | 0 | 0 | 0 |
| 習得する予定の技術・技能が活用されている業種・職種に興味がありますか | 2 | 4 | 0 | 0 | 0 |
| 将来は地元で働き、地域を支える人材になりたいと思いますか | 2 | 3 | 1 | 0 | 0 |
A:思う B:やや思う C:普通 D:あまり思わない E:思わない
エ)生徒アンケート(講義・実習後11/29)
| 質問事項 | A | B | C | D | E |
|---|---|---|---|---|---|
| 集中して授業に取り組んだ | 3 | 3 | 0 | 0 | 0 |
| 学習内容に興味がもてた | 1 | 5 | 0 | 0 | 0 |
| 学習内容が理解できた | 1 | 5 | 0 | 0 | 0 |
| 実践的な内容の授業だ | 1 | 5 | 0 | 0 | 0 |
| 技術者の指導は有効だ | 1 | 5 | 0 | 0 | 0 |
| 企業や産業界に対する理解が深まった | 4 | 1 | 1 | 0 | 0 |
A:思う B:やや思う C:普通 D:あまり思わない E:思わない
(a)授業の内容について
・基礎の加工を学び、実際に試験内容について学んだ。
・試験の内容や工具の扱い方が理解できて良かった。(4)
・銅管を曲げたり切断するなど基本的な事がわかった。
(b)授業の進め方について
・進め方は、とても良かった。
・ちょうど良いペースで良かった。(2)
・大変わかりやすくて、聞きやすい説明だったのでとても良かった。(2)
・とても解りやすく、一つ一つ丁寧で嬉しかった。作っている時にどんどん質問出来たのが良かった。
(c)技術者が授業に参加することについて
・普段、学校の授業では、体験出来ないことが出来、とても良かった。
・実際に現場にいた人が教えて下さるのはとても試験対策などの面においても有効だと思う。(2)
・自分達の質問に対して、とても解りやすく答えて下さったのでとてもありがたかった。
・実用的な技術が体験できた。
・失敗してもどうしてそうなったか教えてもらえるのでいいと思った。
・大変な部分がどこにあるのか等解りやすく教えて下さったので良いと思った。
(d)その他、反省感想
・少し疲れもあったからか、最初は眠くなってしまい大変だった。冷凍配管について学ぶことが出来て、とても楽しかったです。今後も頑張っていきたいです。(2)
・絶対試験に受かるように練習していきたい
・今日の講習は解りやすくて内容的にも充実していたのでとても楽しかった。次回も頑張りたい。
・道具を初めて使ったが、うまく使えたと思う。次回に向け頑張って覚えたいと思う。(2)
オ)生徒アンケート(講義・実習後 12/6)
| 質問事項 | A | B | C | D | E |
|---|---|---|---|---|---|
| 集中して授業に取り組んだ | 5 | 0 | 0 | 0 | 0 |
| 学習内容に興味がもてた | 5 | 0 | 0 | 0 | 0 |
| 学習内容が理解できた | 3 | 2 | 0 | 0 | 0 |
| 実践的な内容の授業だ | 5 | 0 | 0 | 0 | 0 |
| 技術者の指導は有効だ | 5 | 0 | 0 | 0 | 0 |
| 企業や産業界に対する理解が深まった | 1 | 2 | 2 | 0 | 0 |
A:思う B:やや思う C:普通 D:あまり思わない E:思わない
(a)授業の内容について
・解りやすく一つ一つ丁寧で良かった。
・実践的な内容で少し難しかったが、技術を高める事が出来、解りやすい教え方だった。(3)
・紙や鉄板に図を描いて実践的に学習した。
(b)授業の進め方について
・先生が全体を見て回ってくれたので、解らないところも良くわかったし、質問も出来た。(2)
・解らないことを教えてもらえて良かった。
・実際に製作し、とても効率的で良かったと思います。
・図の描き方や作り方の手順が解りやすかった。
(c)技術者が授業に参加することについて
・長年やっているだけあって、色々な事を教えてもらえた。こういうところを見て、やはり技術者に教えてもらえることは良いと思った。(2)
・指示が的確だった。
・深く興味を持ち、学習する事が出来、とても良かったと思います。(2)
(d)その他、反省感想
・始めは上手にいかなかったけど、2回、3回とやっていくうちに、自分のペースもつかめ頑張れば時間内に終わるぐらいまで成長出来た。後は、寸法などを間違えないよう にしたい。
・中心がずれてしまったので合うようにしたい。
・ナットの入れ忘れが多く、それによって時間が無くなったので注意しなければいけないと実感した。
・失敗した事が数多くあったので、試験ではそのような事が無いように気をつけて頑張りたい。
・何故か、けっこう早く作業が出来て自分自身驚いた。試験も自分のペースでクリアしたいと思う。

カ)生徒アンケート(実技試験終了時)
| 質問事項 | A | B | C | D | E |
|---|---|---|---|---|---|
| 集中して講義、実習に取り組めましたか | 6 | 1 | 0 | 0 | 0 |
| 習得した技術、技能について興味がもてましたか | 5 | 2 | 0 | 0 | 0 |
| 習得した技術、技能が活用されている業種、職種に興味がもてました | 1 | 3 | 3 | 0 | 0 |
| 将来は、地元で働き、地域を支える人材になりたいと思いますか | 1 | 2 | 3 | 1 | 0 |
| 講義実習内容は理解できましたか | 5 | 2 | 0 | 0 | 0 |
| 講義、実習により技術、技能は習得できましたか | 5 | 2 | 0 | 0 | 0 |
A:思う B:やや思う C:普通 D:あまり思わない E:思わない
(a)講義、実習の感想、反省、得られた成果、今後の課題等について
・本番で旨く出来るか心配だったけど、漏れもなくほとんど寸法も合っていると思うので良かった。学科も頑張ってやりたい。(2)
・まだ時間内に作る事は難しいが、正確に作れるようになった。
・練習では時間内に仕上がることは無かった。試験では、多少ミスはあったが時間内に仕上げることが出来て良かった。
・講義、実習はとても良かったので今後もしてほしい。
・筆記試験に合格して技能士になれるよう頑張りたい。
3:現場見学
見学場所は、次年度の企業実習につなげるとともに、併せて生産設備の見学が出来る「オリオン機械株式会社」と打合せをしている。
考察
日ごろから実習を通し建築設備の基礎的学習を積んできた生徒は、CADをとにかくマスターしたいということで始めた。CADは、普段の授業の中でもテキストに沿って行うだ けでもかなり使用できるようになる。アドバイスを頂くにも「習うより慣れろ」といことで、半年以上の時間をトレースCADに費やした。時間の経過とともに、生徒も給水配 管の配置や管径について興味を持ち始めCAD図面に配管の学習を取り入れていく事となり、後半になっての共同研究となってしまった。よって、生徒自身の目的意識を早めに決定していくことが大切と考える。
生徒の感想からもあるように、実践的な現場の意見を頂きながら、学習に取り入れることができたことは大変成果があると考える。今後も、ご指導をいただき生徒が興味を持てるよう前向きな取り組みにしたい。
また、基礎知識を身に付けておくことで、より理解が深まり効率よく研究が進められると考える。また、机上の理論学習では物を作ることには繋がらない。そこで、昨年度も取り組んだ資格検定を継続し、実践的技術学習として「冷凍空気調和機器施工」国家資格に挑戦させる機会をもった。講師をお招きし現場の取り組み、工夫している点や実 際の技術を肌身で感じながら、試験内容の実践的講習会を行った。生徒アンケート結果にもあるが、現場の体験を交えての講習会は、新鮮で理にかなっている指導に大変興味をもった等の感想内容が多く出されている。このような機会(情報)を与えたことにより、資格取得(技能検定)に意欲を見せる生徒も増えた。他の検定試験と比べ、実技が伴う技能検定は、改めて物を作る意義を教えてくれたように感じた。今後も引き続き受講する機会をもうけ、合格率向上はかりたいと考える。また、実習に繁栄させる準備を今後検討したい。
普段の建築設備学習の構造・理論を学習の導入と補強に、実際の空調機器の生産現場を見学し、次年度の企業実習につなげるとともに、併せて生産設備の見学を1学年対象に見学する予定である。見学先は「オリオン機械株式会社」である。最新の技術や建築設備工作機械についての知見を深めたいと考える。 以上の事から、今後の実践的カリキュラムの向上を目指し検討していきたい。
今後の活動
1:CAD製図
CADについては、「習うより慣れる」しかないので、CADの操作技術というよりも、給排水配管の設置手順を一般家庭と想定して学習を深めたい。もし、施工中の現場がある ようなら、生徒が考える配管方法、プロが行った配管を比較し、ご意見等いただければ理解が深まっていくのではないかと思う。
2:実践的技術学習
筆記試験に対応した、過去の問題を繰り返し学習させ試験に臨ませたい。
関連リンク
公共ソリューショングループ
電話番号:026-224-0504
FAX番号:026-224-6233

